地下鉄東山線「名古屋」駅から徒歩8分!飲食可能な新築ビルのご紹介です!
645,150円
 64.62m²

中村区名駅南1 広小路ネスト 平面図(間取)

中村区名駅南1 広小路ネスト 外観(外観)

地下鉄東山線「亀島」駅から徒歩4分!名古屋駅からも徒歩圏内の物件です!物販やサービス店舗等にオススメ!
1,540,000円
 延べ325.25m²

西区名駅2 西区名駅2丁目 1棟貸ビル 間取(間取)

西区名駅2 西区名駅2丁目 1棟貸ビル 外観(外観)

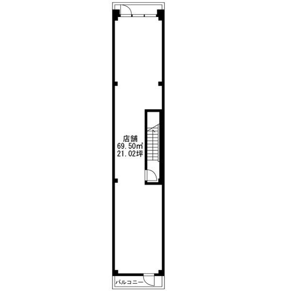
地下鉄東山線「名古屋」駅から徒歩9分!名駅南の1階テナント物件のご紹介です!
388,740円
 75.50m²

近鉄「黄金」駅から徒歩5分!県道115号線沿いの路面店物件のご紹介です!
314,600円
 125.32m²

中村区畑江通2 板倉屋第2ビル 平面図(間取)

中村区畑江通2 板倉屋第2ビル 外観(外観)

地下鉄東山線「八田」駅から徒歩5分!5階建てマンションの1階路面店区画のご紹介です!
110,000円
 51.70m²

中村区並木2 八田さかえビル 間取(間取)

中村区並木2 八田さかえビル 外観①(外観)

JR東海道本線「名古屋」駅から徒歩5分!飲食店が多く建ち並ぶエリアの飲食可能物件のご紹介です!
275,000円
 35.93m²

中村区椿町 NATビル 平面図(間取)

中村区椿町 NATビル 外観①(外観)

JR東海道本線「名古屋」駅から徒歩5分!飲食店が多く建ち並ぶエリアの飲食可能物件のご紹介です!
308,000円
 35.93m²

中村区椿町 NATビル 平面図(間取)

中村区椿町 NATビル 外観①(外観)

JR東海道本線「名古屋」駅から徒歩5分!飲食店が多く建ち並ぶエリアの飲食可能物件のご紹介です!
308,000円
 35.93m²

中村区椿町 NATビル 平面図(間取)

中村区椿町 NATビル 外観①(外観)

名古屋駅近くの新築テナントビル!デザイン性の高い複合ビルとなる予定です。
1,045,000円
 105.48m²

中村区名駅2 THE EDGE名古屋 11-屋上階図面

中村区名駅2 THE EDGE名古屋 外観イメージ

名古屋駅近くの新築テナントビル!デザイン性の高い複合ビルとなる予定です。
935,000円
 104.47m²

中村区名駅2 THE EDGE名古屋 4-5階図面

中村区名駅2 THE EDGE名古屋 外観イメージ

並び替え