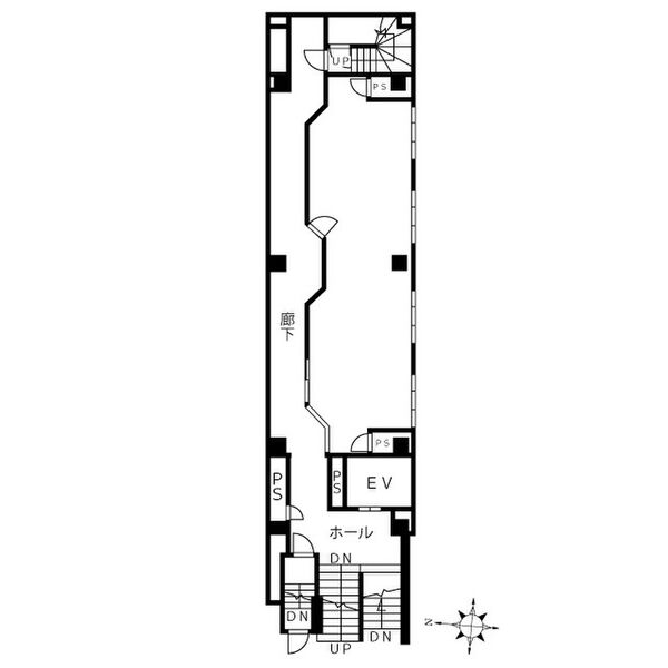
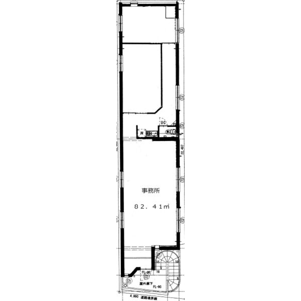
地下鉄桜通線「国際センター」駅から徒歩9分!円頓寺商店街のサロン居抜き物件のご紹介です!
297,000円
 82.41m²

西区那古野2 H・Y Office Bldg 平面図(間取)

西区那古野2 H・Y Office Bldg 外観(外観)

地下鉄名城線「金山」駅から徒歩11分!江川線沿いのテナント物件のご紹介です!
238,128円
 59.65m²

中川区尾頭橋1 HP金山WESTビル 平面図(間取)

中川区尾頭橋1 HP金山WESTビル 外観(外観)

名古屋駅から徒歩7分!広小路通沿い8階テナントビルの2階区画のご紹介です!
相談
 387.01m²

中村区名駅5 ACN名駅ビル 平面図(間取)

中村区名駅5 ACN名駅ビル 外観(外観)

地下鉄東山線・鶴舞線「伏見」駅から徒歩2分!大通り沿い角地!栄2丁目にある飲食店出店可能テナントビルのご紹介です!
416,570円
 125.22m²

中区栄2 FUNFUN TOWER 平面図(間取)

中区栄2 FUNFUN TOWER 外観(外観)

地下鉄東山線・鶴舞線「伏見」駅から徒歩2分!大通り沿い角地!栄2丁目にある飲食店出店可能テナントビルのご紹介です!
990,000円
 125.22m²

中区栄2 FUNFUN TOWER 平面図(間取)

中区栄2 FUNFUN TOWER 外観(外観)

地下鉄名城線・鶴舞線「上前津」駅から徒歩3分!大須4丁目の一棟貸し物件をご紹介します!
385,000円
 127.22m²

中区大須4 大須4丁目一棟店舗事務所 平面図(間取)

中区大須4 大須4丁目一棟店舗事務所 外観(外観)

地下鉄鶴舞線「大須観音」駅から徒歩2分!新築マンション1階テナント区画のご紹介です!
343,200円
 77.91m²

中区大須1丁目 ポルタニグラ大須観音 平面図(間取)

中区大須1丁目 ポルタニグラ大須観音 外観①(外観)

地下鉄鶴舞線「大須観音」駅から徒歩2分!希少な大須エリア路面物件です!
269,720円
 40.54m²

中区大須2丁目 大須黒川ビル 平面図(間取)

中区大須2丁目 大須黒川ビル 外観予想図(外観)

JR東海道本線「名古屋」駅から徒歩5分!飲食店が多く建ち並ぶエリアの飲食可能物件のご紹介です!
275,000円
 35.93m²

中村区椿町 NATビル 平面図(間取)

中村区椿町 NATビル 外観①(外観)

JR東海道本線「名古屋」駅から徒歩5分!飲食店が多く建ち並ぶエリアの飲食可能物件のご紹介です!
308,000円
 35.93m²

中村区椿町 NATビル 平面図(間取)

中村区椿町 NATビル 外観①(外観)

並び替え