名古屋で貸店舗を探すなら貸店舗.名古屋におまかせください!中区を中心とした1階路面店や居抜物件など豊富な物件情報が満載です

サイトマップ

プライバシーポリシー

  • お気に入りの
    登録は0件です

    お気に入り
  • 閲覧履歴

お問合せ

  • HOME
  • 貸店舗.名古屋とは
  • 貸店舗検索
  • スタッフブログ
  • 成約事例
  • よくあるご質問
  • 会社概要
【物件一覧】

並び替え

デフォルト

賃料が高い順賃料が安い順

賃室面積が広い順賃室面積が狭い順

間取 住所

築年月が新しい順築年月が古い順

さらに絞り込む

1件

近鉄「黄金」駅から徒歩5分!県道115号線沿いの路面店物件のご紹介です!
314,600円
 125.32m²

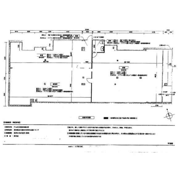
中村区畑江通2 板倉屋第2ビル 平面図(間取)

中村区畑江通2 板倉屋第2ビル 外観(外観)

【物販店やサービス店にオススメ!:板倉屋第2ビル:1階37.90坪】近鉄「黄金」駅から徒歩5分!県道115号線沿いの路面店物件をご紹介します!

階数
1階/5階建
貸室面積
37.90坪
賃料
314,600円
所在地
愛知県名古屋市中村区畑江通2丁目15
交通
近鉄名古屋線黄金駅 徒歩350m 徒歩5分
築年月
1986/12
おすすめポイント
板倉屋第2ビルは、近鉄「黄金」駅から徒歩5分の所にある、県道115号線沿いのテナント物件です! 今回の募集は1階の路面店区画で、ワンフロア仕様になっています!…
更新日2026-01-16
物件の詳細を見る >
FavoriteLoadingお気に入りに保存する

並び替え

デフォルト

賃料が高い順賃料が安い順

賃室面積が広い順賃室面積が狭い順

間取 住所

築年月が新しい順築年月が古い順

さらに絞り込む

条件検索

条件検索

条件検索

※業種選択をお選びいただきますと設備条件が表示されます。

路線・駅または県・市区を選んでいただき、ご希望の条件を選択して検索ボタンを押して下さい
路線・
駅選択

県・市区選択

賃料
~
価格
~
専有面積
~
駅徒歩
築年数

貸店舗名古屋LINEご相談専用窓口
無料メルマガ会員募集中!登録はこちらから
地図から物件を探す
路面店特集
中区の貸店舗物件特集
オーナー様へ

路線マップ

物件キーワード

1階 1階路面店 アパレル オフィス街 カフェ ガラス張り コンビニ フィットネス マッサージ ワンフロア 上前津 丸の内 久屋大通 伏見 伏見駅 名古屋駅 名城線 名駅 喫茶店 国際センター 大通り沿い 広小路通 整体 本山 東区 東山線 栄 栄駅 桜通 泉 物販 矢場町 矢場町駅 築浅 美容院 西区 角地 路面店 軽飲食 重飲食 錦通り 間口が広い 高岳 1棟貸し JR

物件掲載件数 526 件

お気軽にお問い合わせください

営業時間:9:00~18:00 定休日:日・祝日

お問い合わせはこちら

おすすめ物件

  • 【美容関係・サービス店舗にオス...

    973,940円

    愛知県名古屋市中区 大須4丁目1038-4、1039-1、1039-2(地番)

    名古屋市営名城線上前津駅 徒歩3分

  • 【美容関係・サービス店舗にオス...

    998,800円

    愛知県名古屋市中区 大須4丁目1038-4、1039-1、1039-2(地番)

    名古屋市営名城線上前津駅 徒歩3分

  • 【美容関係・サービス店舗にオス...

    998,800円

    愛知県名古屋市中区 大須4丁目1038-4、1039-1、1039-2(地番)

    名古屋市営名城線上前津駅 徒歩3分

  • 【美容関係・サービス店舗にオス...

    998,800円

    愛知県名古屋市中区 大須4丁目1038-4、1039-1、1039-2(地番)

    名古屋市営名城線上前津駅 徒歩3分

更新情報をフォロー

  • 貸店舗.名古屋をフォロー
  • 貸店舗.名古屋をフォロー

Tweets by kashitenpo758

  • 052-324-3334

    電話受付時間/9:00~18:00[日・祝は除く]
    物件のご相談はお気軽にお問い合わせください。

  • メールでのお問い合わせ

    貸店舗についてお気軽にご相談ください。
    1営業日以内に担当者よりご連絡いたします。

  • 052-324-3334

    電話受付時間/9:00~18:00[日・祝は除く]
    物件のご相談はお気軽にお問い合わせください。

  • メールでのお問い合わせ

    貸店舗についてお気軽にご相談ください。
    1営業日以内に担当者よりご連絡いたします。

無料メルマガ会員募集中!登録はこちらから

貸店舗名古屋LINEご相談専用窓口

  • お問い合わせはこちら
  • 条件検索はこちら
  • 無料メルマガ登録はこちら
ページ上部へ戻る

業種カテゴリ

  • 重飲食(居酒屋・焼肉・ラーメン等)
  • 軽飲食(カフェ等)
  • 美容・クリニック
  • 物販店舗(アパレル等)
  • 塾・スクール
  • ロードサイド店舗
  • その他飲食店
  • アミューズメント
  • その他

    キーワードカテゴリ

    • 東別院
    • 千種区
    • 2階
    • 2階以上
    • 泉
    • 新栄町
    • 一階路面店
    • 1・2階
    • 矢場町
    • 大曽根
    • 天白区
    • 野並
    • 駅近
    • スケルトン
    • 1階店舗
    • 造作譲渡有
    • 角部屋
    • いりなか
    • 1階路面店
    • 名東区
    • 星ヶ丘
    • 伏見
    • 3階
    • 本山
    • 千種
    • 車道
    • 上社
    • 若宮大通
    • 吹上
    • 池下
    • 御器所
    • 鶴舞
    • 徒歩2分
    • 飲食店
    • 3階
    • 東山線
    • 名城線
    • 桜通線
    • 名駅南
    • 広小路通
    • 重飲食
    • 葵
    • 新栄町駅
    • 徒歩1分
    • 5階
    • 塾
    • 美容サロン
    • スクール
    • 近鉄線
    • 高岳
    • 東山公園駅
    • 24時間利用可
    • 土日利用可
    • エアコン
    • 地下
    • 栄駅
    • 伏見駅
    • 角地
    • 徒歩4分
    • 物販
    • 医療
    • 名港線
    • JR線
    • 名鉄線
    • 徒歩2分
    • 徒歩1分
    • 事務所内装
    • 千種駅
    • 高岳駅
    • イタリアン飲食店
    • 共用部分改装
    • 中川区
    • 尾頭橋
    • 徒歩7分
    • 大津通
    • 国際センター
    • 矢場町駅
    • 最上階
    • ワンフロアワンテナント
    • 鶴舞線
    • 重飲食可
    • 覚王山
    • 八事日赤
    • 名古屋駅
    • 亀島駅
    • 大須観音
    • 美観
    • 国際センター駅
    • クリニック
    • 守山区
    • 名駅三丁目
    • 庄内通
    • 近鉄
    • 黄金
    • 黒川
    • 軽飲食
    • カフェ
    • 浄心
    • 本郷
    • 平針
    • 新栄
    • 豊橋
    • 八事
    • 太閤通
    • SOHO
    • 那古野
    • 円頓寺
    • 新瑞橋
    • セントラルキッチン
    • 桜山
    • バー
    • 高畑
    • 長久手
    • JR東海道本線
    • 春日井
    • 岡崎
    • 六番
    • 桜本町
    • 豊明
    • 栄
    • 中区
    • 1階
    • 路面店
    • 栄・伏見
    • 新築
    • 大須
    • 錦
    • 久屋大通
    • 丸の内
    • その他
    • 居抜き
    • 地下1階
    • 金山
    • 東区
    • 一社
    • 北区
    • 名駅
    • 上前津
    • 昭和区
    • 1棟貸し
    • 中村区
    • 瑞穂区
    • ロードサイド
    • 南区
    • 藤が丘
    • 今池
    • 熱田区
    • 西区
    • リノベーション
    • 緑区

    地域カテゴリ

    • 愛知県
      • 名古屋市千種区
      • 名古屋市東区
      • 名古屋市北区
      • 名古屋市西区
      • 名古屋市中村区
      • 名古屋市中区
      • 名古屋市昭和区
      • 名古屋市瑞穂区
      • 名古屋市熱田区
      • 名古屋市中川区
      • 名古屋市南区
      • 名古屋市守山区
      • 名古屋市緑区
      • 名古屋市名東区
      • 名古屋市天白区
      • 豊橋市
      • 岡崎市
      • 一宮市
      • 春日井市
      • 豊明市
      • 愛西市

    路線カテゴリ

    • JR関西本線
      • 八田
    • JR東海道本線
      • 豊橋
      • 笠寺
      • 熱田
      • 金山
      • 尾頭橋
      • 名古屋
      • 尾張一宮
    • JR中央本線
      • 春日井
      • 大曽根
      • 千種
      • 鶴舞
      • 金山
      • 名古屋
    • 近鉄名古屋線
      • 黄金
    • 愛知高速東部丘陵線
      • 藤が丘
    • 基幹バス
      • 引山
    • 名鉄犬山線
      • 下小田井
      • 中小田井
    • 名鉄瀬戸線
      • 清水
      • 森下
      • 守山自衛隊前
      • 瓢箪山
      • 喜多山
    • 名鉄尾西線
      • 佐屋
    • 名鉄名古屋本線
      • 豊橋
      • 東岡崎
      • 豊明
      • 前後
      • 鳴海
      • 本笠寺
      • 呼続
      • 堀田
      • 神宮前
      • 山王
      • 名鉄名古屋
      • 栄生
      • 名鉄一宮
    • 名古屋臨海高速あおなみ線
      • ささしまライブ
    • 名古屋市営鶴舞線
      • 上小田井
      • 庄内緑地公園
      • 庄内通
      • 浄心
      • 浅間町
      • 丸の内
      • 伏見
      • 大須観音
      • 上前津
      • 鶴舞
      • 御器所
      • 川名
      • いりなか
      • 八事
      • 塩釜口
      • 植田
      • 平針
    • 名古屋市営桜通線
      • 太閤通
      • 名古屋
      • 国際センター
      • 丸の内
      • 久屋大通
      • 高岳
      • 車道
      • 今池
      • 吹上
      • 御器所
      • 桜山
      • 瑞穂区役所
      • 新瑞橋
      • 桜本町
      • 鶴里
      • 野並
      • 相生山
      • 神沢
    • 名古屋市営東山線
      • 高畑
      • 八田
      • 岩塚
      • 中村公園
      • 中村日赤
      • 本陣
      • 亀島
      • 名古屋
      • 伏見
      • 栄
      • 新栄町
      • 千種
      • 今池
      • 池下
      • 覚王山
      • 本山
      • 東山公園
      • 星ヶ丘
      • 一社
      • 上社
      • 本郷
      • 藤が丘
    • 名古屋市営名港線
      • 日比野
      • 六番町
    • 名古屋市営名城線
      • 本山
      • 茶屋ヶ坂
      • 砂田橋
      • ナゴヤドーム前矢田
      • 大曽根
      • 平安通
      • 黒川
      • 久屋大通
      • 栄
      • 矢場町
      • 上前津
      • 東別院
      • 金山
      • 妙音通
      • 新瑞橋
      • 瑞穂運動場東
      • 総合リハビリセンター
      • 八事
      • 八事日赤

不動産関連サービス

グループサービス

  • 不動産仲介はクルーズコーポレーション
  • テキサス不動産投資は
    クルーズハウジングコーポレーション
  • 不動産管理はクルーズ
  • 貸店舗.名古屋とは
  • 貸店舗検索
  • 成約事例
  • ブログ
  • よくあるご質問
  • 不動産用語集
  • 貸店舗物件一覧
  • 会社概要
  • お問い合わせ
  • サイトマップ
  • プライバシーポリシー

貸店舗.名古屋は名古屋市・栄の
貸店舗探しのエキスパート集団です

店舗名古屋

貸店舗.名古屋では名古屋市の中区栄を中心とした貸店舗を紹介し、地元に根差した細やかなサービスでお客様のご要望にお応えいたします。

三越、松坂屋、ラシック、パルコ、ブランドショップが軒を連ねる南大津通を中心として、緑豊かな景色の久屋大通、ナディアパークやソニーストアのある伊勢町通り、人気のショップや飲食店が多い呉服町通り等、それぞれの特長ある栄の魅力をつくるためのテナントリーシングに注力しています。

また貸店舗.名古屋のメンバーは自らの足で名古屋の街を歩き、そこで得られた旬の情報をブログや新着物件情報に日々更新を行っております。ぜひ貸店舗.名古屋メンバーの真心のこもった更新情報をご覧になっていただき、名古屋の街をより好きになってもらえるようになれば幸いでございます。

不動産関連サービス

グループサービス

  • 不動産仲介はクルーズコーポレーション
  • テキサス不動産投資はクルーズハウジングコーポレーション
  • 不動産管理はクルーズ

  • facebook
  • twitter
  • YouTube

Copyright © kashitenpo.nagoya All Rights Reserved.

Fudousan Plugin Ver.1.6.3