地下鉄東山線・名城線「栄」駅から徒歩5分!ラーメン店の居抜き物件をご紹介します!
462,000円
 45.83m²

中区錦3 Wnishikiビル 平面図(間取)

中区錦3 Wnishikiビル 外観(外観)

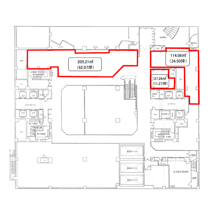
地下鉄名城線「金山」駅から徒歩1分!金山エリアの駅近テナントビルのご紹介です!
689,117円
 159.3m²

中区金山1 ベルデ・マーレ・ビル 平面図(間取)

中区金山1 ベルデ・マーレ・ビル 外観(外観)

栄3丁目にある呉服町通沿いのガラス張りお洒落な物件のご紹介です!
相談
 63.44m²

栄3 サカエサウススクエア 間取図

栄3 サカエサウススクエア 外観

地下鉄東山線・名城線「本山」駅から徒歩6分!猫洞通の路面店物件をご紹介します!
110,000円
 30.00m²

千種区猫洞通4 ウェザーフィールド 平面図(間取)

千種区猫洞通4 ウェザーフィールド 外観(外観)

地下鉄東山線・名城線「栄」駅から徒歩4分!三蔵通沿いの飲食可能ビルのご紹介です!
598,774円
 105.86m²

中区栄3 ルパルクMK 平面図(間取)

中区栄3 ルパルクMK 外観(外観)

地下鉄東山線・名城線「本山」駅から徒歩6分!猫洞通の路面店物件をご紹介します!
154,000円
 46.02m²

千種区猫洞通4 ウェザーフィールド 平面図(間取)

千種区猫洞通4 ウェザーフィールド 外観(外観)

地下鉄名城線・鶴舞線「上前津」駅から徒歩3分!大須4丁目の一棟貸し物件をご紹介します!
385,000円
 127.22m²

中区大須4 大須4丁目一棟店舗事務所 平面図(間取)

中区大須4 大須4丁目一棟店舗事務所 外観(外観)

名城線「金山」駅から徒歩2分!希少な金山エリアの物件のご紹介です!
176,000円
 72.70m²

中区金山4丁目 前川ビル 平面図(間取)

中区金山4丁目 前川ビル 外観(外観)

地下鉄名城線・桜通線「久屋大通」駅から徒歩5分!泉1丁目の新築テナントビルをご紹介します!
275,000円
 55.30m²

東区泉1 IZUMI LEAD SQUARE 平面図(間取)

東区泉1 IZUMI LEAD SQUARE 外観パース(外観)

地下鉄名城線・桜通線「久屋大通」駅から徒歩5分!泉1丁目の新築テナントビルをご紹介します!
220,000円
 46.00m²

東区泉1 IZUMI LEAD SQUARE 平面図(間取)

東区泉1 IZUMI LEAD SQUARE 外観パース(外観)

並び替え