地下鉄東山線「亀島」駅より8分!則武イオン近くのフルリノベーション古民家物件のご紹介です!
176,880円
 44.29m²

西区則武新町1 則武古民家 平面図(間取)

西区則武新町1 則武古民家 外観(外観)

名古屋駅から徒歩7分♪予約制のサロン、事務所利用にオススメ!
191,763円
 44.34m²

西区名駅3 サン・名駅三丁目ビル 平面図(間取)

西区名駅3 サン・名駅三丁目ビル 外観(外観)

名古屋駅から徒歩7分♪予約制のサロン、事務所利用にオススメ!
193,248円
 48.39m²

西区名駅3 サン・名駅三丁目ビル 平面図(間取)

西区名駅3 サン・名駅三丁目ビル 外観(外観)

地下鉄鶴舞線「庄内通」駅から徒歩12分!西区の駐車場付き物件のご紹介です!
268,664円
 187.48m²

西区又穂町1 名城ビル 平面図(間取)

西区又穂町1 名城ビル 外観(外観)

地下鉄桜通線「国際センター」駅から徒歩9分!円頓寺商店街のテナント物件のご紹介です!
231,000円
 82.41m²

西区那古野2 H・Y Office Bldg 平面図(間取)

西区那古野2 H・Y Office Bldg 外観(外観)

名鉄犬山線「中小田井」駅から徒歩9分!喫茶店の居抜き物件です!
176,000円
 66.83m²

西区中小田井2 メゾン・ド・グローバル 平面図(間取)

西区中小田井2 メゾン・ド・グローバル 外観(外観)

地下鉄鶴舞線「庄内通」駅から徒歩15分!西区上堀越町の大型物件のご紹介です!
514,800円
 516.21m²

西区上堀越町3 FLATS GAZERY 平面図(間取)

西区上堀越町3 FLATS GAZERY 外観(外観)

地下鉄東山線「亀島」駅から徒歩4分!名古屋駅からも徒歩圏内の物件です!物販やサービス店舗等にオススメ!
1,400,000円
 延べ325.25m²

西区名駅2 西区名駅2丁目 1棟貸ビル 平面図(間取)

西区名駅2 西区名駅2丁目 1棟貸ビル 外観(外観)

地下鉄桜通線「国際センター」駅から徒歩9分!円頓寺商店街のサロン居抜き物件のご紹介です!
297,000円
 82.41m²

西区那古野2 H・Y Office Bldg 平面図(間取)

西区那古野2 H・Y Office Bldg 外観(外観)

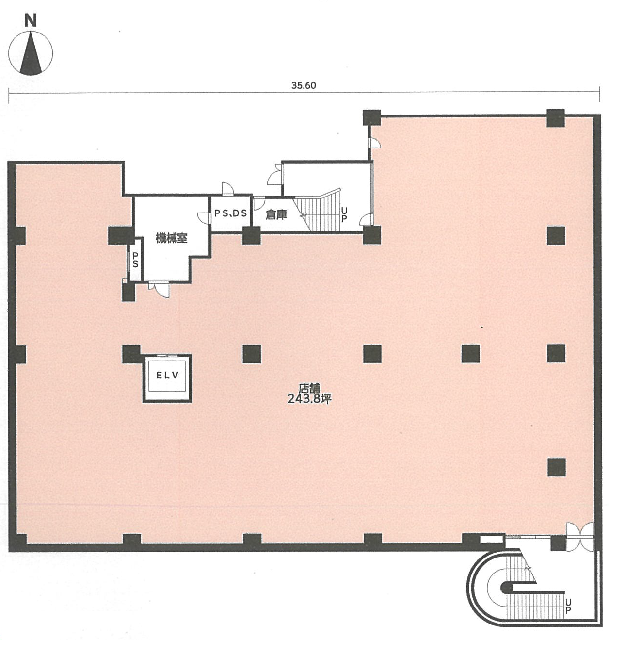
地下鉄東山線・桜通線「名古屋」駅から徒歩5分!名古屋駅エリアの希少な飲食可能テナントビルです!
1,320,000円
 297.56m²

西区名駅2 名駅二丁目店舗ビル 1階平面図(間取)

西区名駅2 名駅二丁目店舗ビル 外観①(外観)

並び替え