
名鉄瀬戸線「瓢箪山」駅から徒歩1分!駅前好立地の飲食店向きテナント物件のご紹介です!
- 物件No.
- T 3255
お問い合わせ時にスタッフにお伝えください。
- 物件No.
- T 3255
お問い合わせ時にスタッフにお伝えください。
このページを印刷する
※印刷時の注意事項
レイアウトを縦向きにして印刷してください。
物件概要
その他賃貸条件・建物・備考
| 構 造 | RC | 駐車場 | 近隣 近隣コインパーキング有 |
|---|---|---|---|
| 規 模 | 地上5階 | 築年数 | 1990/11 |
| 現 状 | 空室 | 引渡し日 | 相談 |
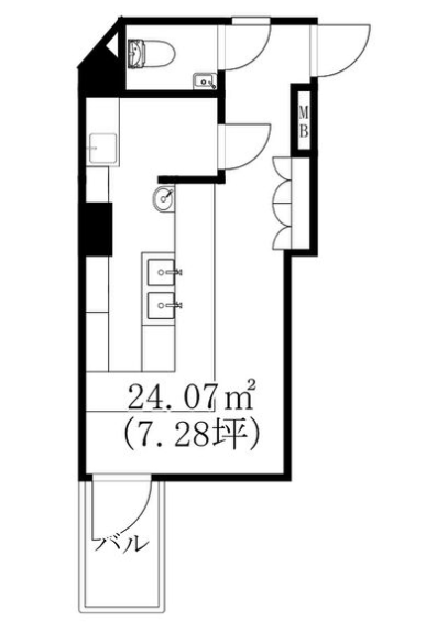
| 設備・条件その他 | 2階以上 角地 飲食店可 エレベータ 駅前立地 エアコン 都市ガス トイレ専用 バルコニー | ||
| 備 考 | ・契約期間:2年間 ・短期解約違約金:1年未満の解約の場合は賃料総額の1ヶ月分 ・保証会社:Casa(初回保証料80%、年間保証料10%(最低保証料1万円)/1年毎、口座振替手数料300円(税別)) ※保証会社加入に加え、連帯保証人が必要となります。 ・保険:要加入(指定なし) ・カギ交換費用:契約時22,000円(税込) ・更新事務手数料:更新時16,500円(税込) |
||
- 【1】
- 案内図・間取図・方位がこの案内書と現況が異なる場合は現況を優先いたします。
- 【2】
- 駐車場の空き状況についてはお問い合わせください。
- 【3】
- 万一成約済の際はご了承ください。
- 【4】
- 契約成立の場合、賃料の1ヶ月分(+消費税)相当額の仲介手数料を申し受けます。
※賃料・共益費には消費税が含まれます。


【バーやスナックにオススメ!:サンシャイン瓢箪山:4階7.33坪】名鉄瀬戸線「瓢箪山」駅から徒歩1分!駅前好立地の飲食店向きテナント物件をご紹介します!
サンシャイン瓢箪山は、名鉄瀬戸線「瓢箪山」駅から徒歩1分の所にある、駅前好立地の5階建てテナント物件です!
今回の募集は4階区画で、飲食店も可能となっています!
瓢箪山駅周辺でバーなどの出店をご希望の方には大変オススメです!
ご興味のある方は是非一度お問い合わせください!

Loading...












