
- 物件No.
- T 1248
お問い合わせ時にスタッフにお伝えください。
- 物件No.
- T 1248
お問い合わせ時にスタッフにお伝えください。
※印刷時の注意事項
レイアウトを縦向きにして印刷してください。
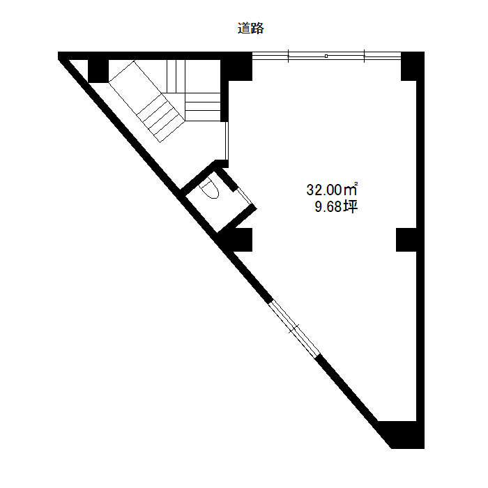
物件概要
その他賃貸条件・建物・備考
| 構 造 | RC | 駐車場 | 無 |
|---|---|---|---|
| 規 模 | 地上5階 | 築年数 | 1981/06 |
| 現 状 | 賃貸中 | 引渡し日 | 相談 |
| 設備・条件その他 | 2階以上 1フロア1テナント エアコン 個別空調 都市ガス トイレ専用 | ||
| 備 考 | ・普通借家契約:2年間 ・短期解約違約金:1年未満1ヶ月分 ・保証会社:USEN ・保険要加入 ・水道料金:月額 2,600円(税込) ※エレベーターはございません。 ↓ ↓ お問い合わせ窓口 ↓ ↓ 営業担当:岡 優大 LINE ID:@764mebwp TEL:080-8979-7068(携帯)/052-324-3334(代表) LINEメッセージは24時間受け付けております! ご内見希望、ご質問等がございましたらお気軽にお尋ねください! |
||
- 【1】
- 案内図・間取図・方位がこの案内書と現況が異なる場合は現況を優先いたします。
- 【2】
- 駐車場の空き状況についてはお問い合わせください。
- 【3】
- 万一成約済の際はご了承ください。
- 【4】
- 契約成立の場合、賃料の1ヶ月分(+消費税)相当額の仲介手数料を申し受けます。
※賃料・共益費には消費税が含まれます。



【美容サロンにオススメ!:MAIビル:5階9.68坪】地下鉄東山線「名古屋」駅から徒歩6分!名古屋駅徒歩圏内の1フロア1テナントビルのご紹介です!
MAIビルは中村区名駅3丁目にあるビルです!
JR線・地下鉄東山線「名古屋」駅から徒歩6分の好立地です!
人通りの多い立地にあり、視認性も良好です!
1フロア1テナントのため、他テナントに気兼ねなくご利用いただけます!
ご興味のある方は是非一度お問い合わせください!
























