
- 物件No.
- T 3924
お問い合わせ時にスタッフにお伝えください。
- 物件No.
- T 3924
お問い合わせ時にスタッフにお伝えください。
※印刷時の注意事項
レイアウトを縦向きにして印刷してください。
物件概要
その他賃貸条件・建物・備考
| 構 造 | SRC | 駐車場 | 無 |
|---|---|---|---|
| 規 模 | 地上5階 地下2階 | 築年数 | 1960/07 |
| 現 状 | 空室 | 引渡し日 | 即時 |
| 設備・条件その他 | 1階 2階以上 エレベータ エアコン | ||
| 備 考 | ・定期借家契約:2030年12月31日まで ・保証会社利用必須 ・保険要加入 ↓ ↓ お問い合わせ窓口 ↓ ↓ 営業担当:岡 優大 LINE ID:@764mebwp TEL:080-8979-7068(携帯)/052-324-3334(代表) LINEメッセージは24時間受け付けております! ご内見希望、ご質問等がございましたらお気軽にお尋ねください! |
||
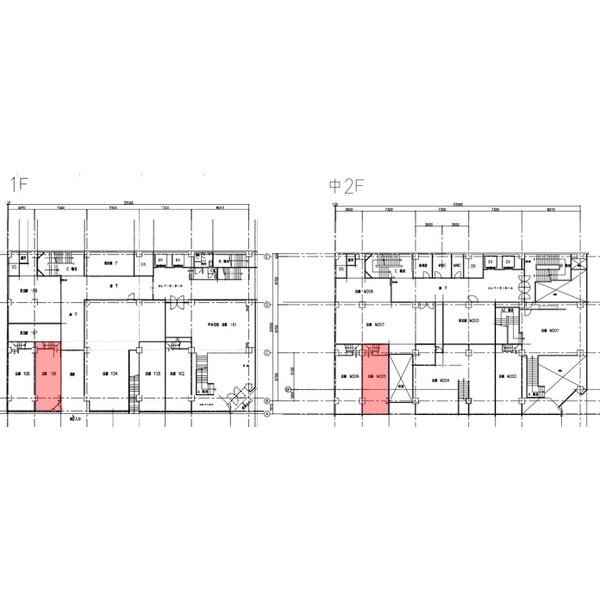
- 【1】
- 案内図・間取図・方位がこの案内書と現況が異なる場合は現況を優先いたします。
- 【2】
- 駐車場の空き状況についてはお問い合わせください。
- 【3】
- 万一成約済の際はご了承ください。
- 【4】
- 契約成立の場合、賃料の1ヶ月分(+消費税)相当額の仲介手数料を申し受けます。
※賃料・共益費には消費税が含まれます。


【物販店やサービス店にオススメ!:中央広小路ビル:1-2階105-M205号室21.00坪】地下鉄東山線・名城線「栄」駅から徒歩5分!広小路通沿いの路面店物件をご紹介します!
中央広小路ビルは、地下鉄東山線・名城線「栄」駅から徒歩5分の所にある、広小路通沿いのテナントビルです!
今回の募集は1-2階の道路に面した路面店区画になります!
栄エリアで物販店などの出店をご希望の方には大変オススメです!
ご興味のある方は是非一度お問い合わせください!


















