
- 物件No.
- T 0607
お問い合わせ時にスタッフにお伝えください。
- 物件No.
- T 0607
お問い合わせ時にスタッフにお伝えください。
※印刷時の注意事項
レイアウトを縦向きにして印刷してください。
物件概要
その他賃貸条件・建物・備考
| 構 造 | RC | 駐車場 | 無 |
|---|---|---|---|
| 規 模 | 地上4階 | 築年数 | 1973/06 |
| 現 状 | 空室 | 引渡し日 | 相談 |
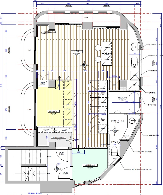
| 設備・条件その他 | 2階以上 最上階 1フロア1テナント | ||
| 備 考 | ・契約期間:2年間 ・保証会社利用必須 ・保険要加入 ・定額水道料:月額 3,500円(税込) ・クルーズサポート料金:月額 990円(税込) ・カギ交換代:契約時 66,000円(税込) |
||
- 【1】
- 案内図・間取図・方位がこの案内書と現況が異なる場合は現況を優先いたします。
- 【2】
- 駐車場の空き状況についてはお問い合わせください。
- 【3】
- 万一成約済の際はご了承ください。
- 【4】
- 契約成立の場合、賃料の1ヶ月分(+消費税)相当額の仲介手数料を申し受けます。
※賃料・共益費には消費税が含まれます。



【サービス店にオススメ!:aurora building(オーロラビル):4階19.10坪】地下鉄名城線「総合リハビリセンター」駅から徒歩3分!山手グリーンロード沿いのテナント物件をご紹介します!
オーロラビルは、地下鉄名城線「総合リハビリセンター」駅から徒歩3分と便利な場所にあります。
交差点の角地にあるため、視認性が良い物件です。ビルのテーマは「Healthy&Beauty&Ecology」です!
今回ご紹介する区画は4階ワンフロア19.10坪です!
エステサロン、ネイルサロン等の美容関係店舗や事務所としての利用にもオススメです。
ご興味のある方は是非一度お問い合わせください!


























